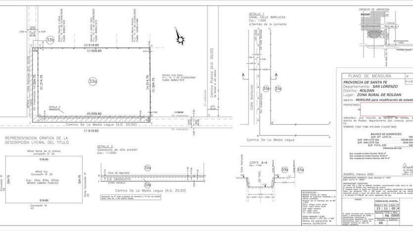
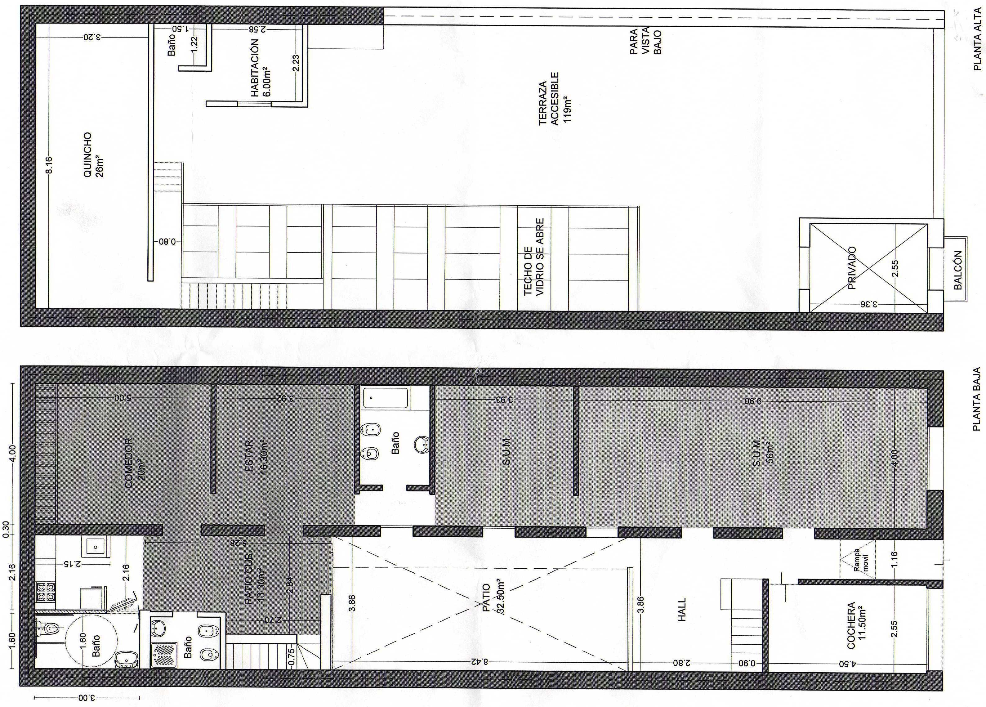
Piso exclusivo en construcción, entrega estimada Diciembre 2025. Notable calidad, en el centro/norte de la ciudad, a metros del rÃo, Parque España. El edificio contará con un hall de ingreso con control de acceso y sistema de video monitoreado. Los palieres de ingreso a cada unidad tendrán sensores de movimiento para iluminación y luz de emergencia. Puertas de acceso de seguridad en el ingreso a los departamentos, metálicas reforzadas. AmplÃsimo sector social, de 8,70 X 6,30 m., abarcando todo el ancho de la propiedad sobre calle Dorrego, con salida a balcón terraza corrido de 8,70 X 2,10 m., con vidrios laminados de seguridad. El sector cocina estará vinculado y ofrecerá un generoso espacio para comedor diario. La cocina estará totalmente equipada, con horno y anafe de acero inoxidable, y muebles bajo mesada y alacenas marca Zurchmitten. El sector social estará atendido por un toilette de recepción. Lavadero independiente cubierto. Tres dormitorios dando al contrafrente, el principal en suite, con vestidor y baño con antebaño. De los restantes dormitorios, ambos contarán con placares y uno de ellos tendrá expansión a un balcón individual. La unidad contará con un segundo baño principal completo, con antebaño. Espacios guardacoches disponibles en el edificio, tanto en planta subsuelo como en entrepiso, El edificio tendrá amenities (SUM en azotea totalmente cerrado, parrillero, cocina, baño, heladera y mobiliario de uso común). Especificaciones técnicas: Muebles de cocina, baños y placares totalmente terminados marca Zurchsmitten, muros dobles con cámaras de aire (cumplen requerimientos eficiencia energética), paredes y cielorrasos enduÃdos en yeso con buña perimetral, preinstalación equipos AA, cañerÃa para instalar circuito de alarma, instalación fibra óptica para TV e Internet, griferÃas FV, losa Ferrum, piletas Johnson acero, CALDERA DUAL Y RADIADORES EN TODOS LOS AMBIENTES, llaves térmicas y disyuntores, circuitos reforzados para aire acondicionado, edificio con gas, sistema de conducción Acindar con llaves de paso FV, conducción de agua por termofusión Hidro 3, ascensor de última generación con variador de frecuencia y cabina extendida, puertas automáticas y revestimiento acero inoxidable. sensores de proximidad, videocámaras en sectores comunes con DVR (bajas expensas).












